Cell: (613) 803-2059 Click here VM-Design

Philippians 4:13

"We believe that what we do is unique, and because we love it!"; Drafting, Scale Models; Plans for Churches, Commercial Retail, Residential; Expo Exhibits; Shop Drawings & Illustrations

Thumbnail Image 1

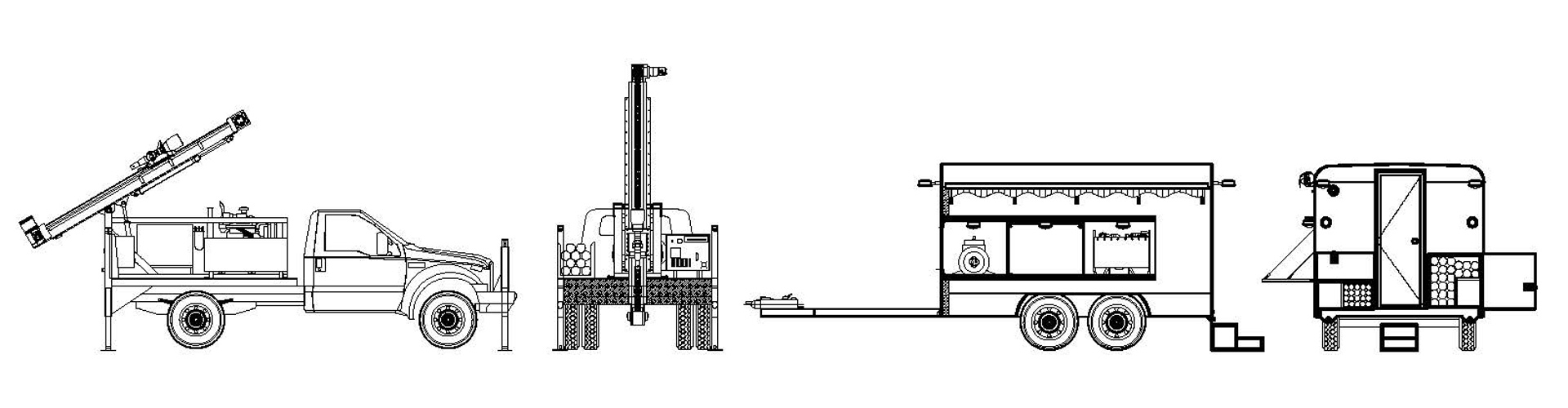
Scale Modeling

Provide us the sketches, plans or ideas & we generate your Ideas into scale modeling

 

Thumbnail Image 1

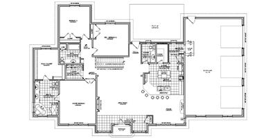
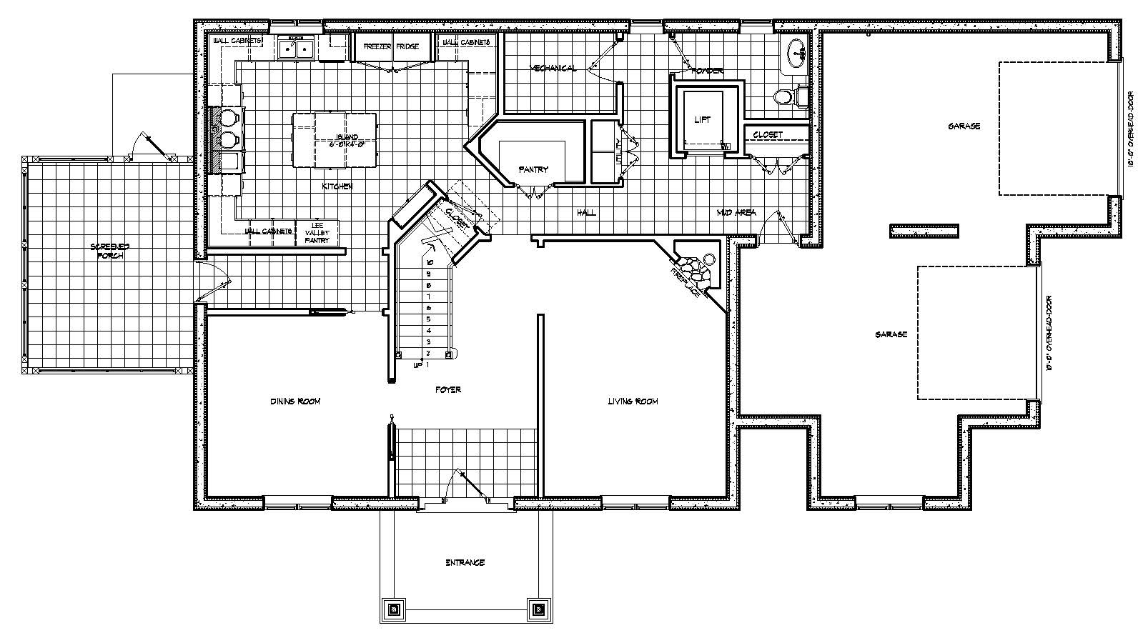
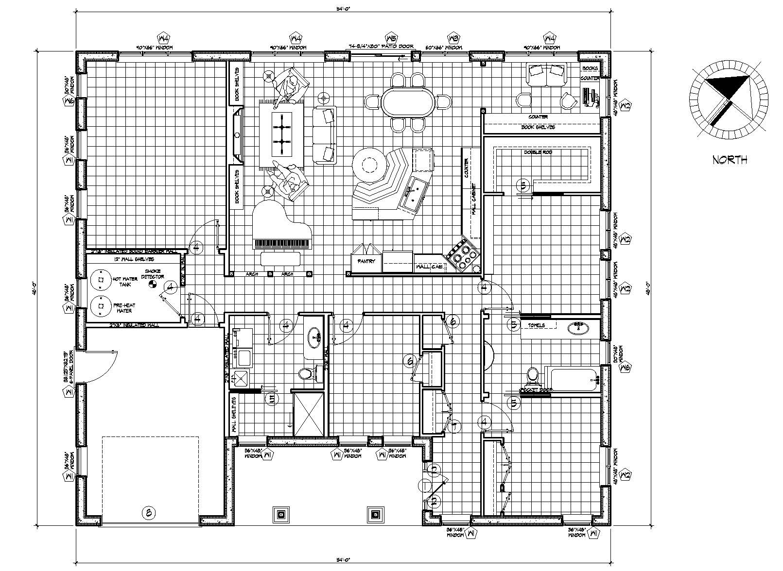
Floor Plans

Tell us what and how you want your floor plan and we provide you with the best solutions

 

Thumbnail Image 1

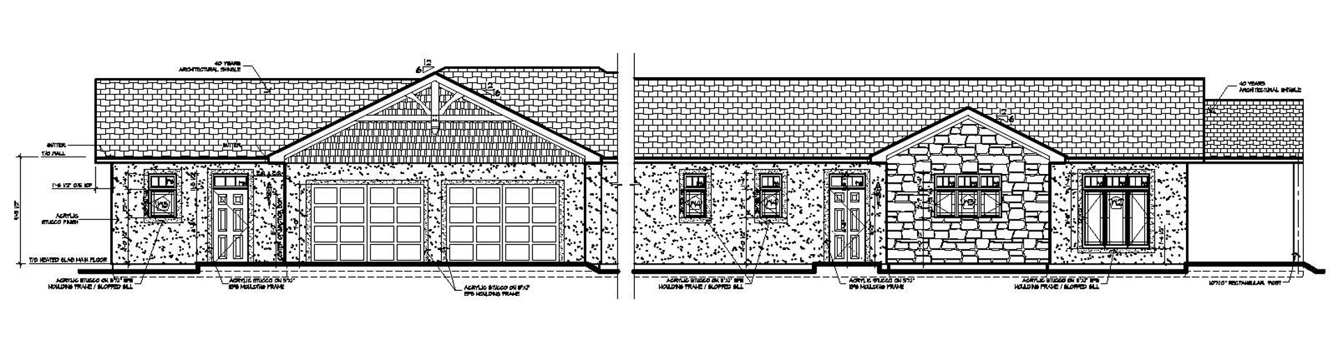
Exterior Elevations

Give us your perception of the interior and exterior of your project and we design the elevations

 


Services for Your Projects


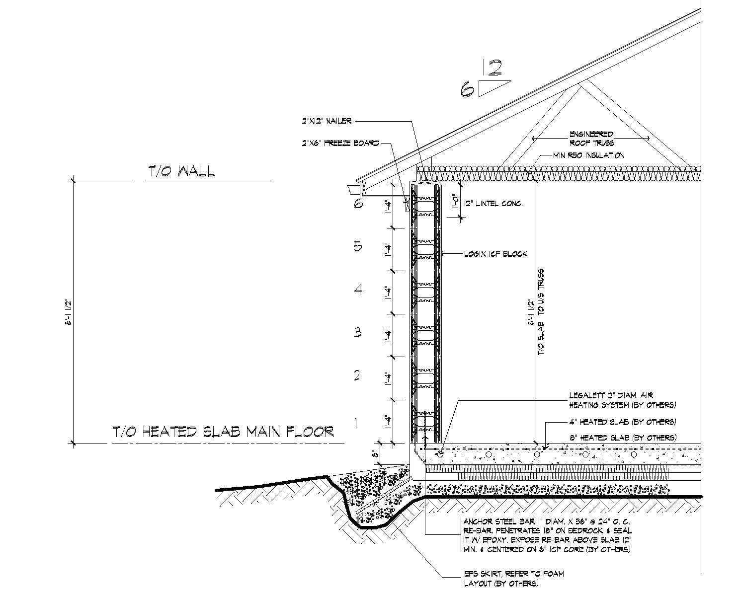
Foundation Plans

We draw foundations plans with enough information as per building code. All foundation walls comply with energy efficiency either: ICF, poured concrete or concrete blocks.

Floor Plans

We sit down and  talk; so we can understand the psychology of your project. We provide suggestions, we design with you, not impose; we make your project unique and beautifully. We provide schedules for your windows, doors, walls, floors, ceilings and painting.

Elevations Plans

After the spaces distribution has been approved, we proceed with designing the elevations. All walls comply with energy efficiency. We cross reference from the windows and doors schedules with your elevations. The floor plan can be slightly modified, as we design the elevations. We suggest styles as per our perception from our initial conversations; however you make the final decision.

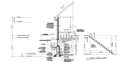
Details

We take care of the details, unless you otherwise specify special customization. If special customization is required, we will provide the estimate for developing the drawings for fabrication, and the engineering revisions.

Cross Sections Plans

We draw typical walls and building cross sections for your project. Enough information will be supplied for the builder. Sections awill be cross referenced with symbols calling for details in floor plans and elevations.

Mechanical Ducts HVAC & Electrical

We provide mechanical ducts layout and HVAC locations. With electrical, we specify lighting ceiling, wall layouts, switches and outlets locations. Mechanical and Electrical Schedules are included in the same plans.  :

Architectural Scale Modeling

You provide the floor plans, elevations; sketches or conceptual ideas; and we create your scale model. We have done scale models for churches, residences, high rise buildings, civic plazas, small cities, topographical sites showing elevations, contours, rivers and lakes; interior spaces for offices, residences and exhibits,

Digital Illustrations

We make artistic illustrations digitally, or we can convert your art in a digital version. We prepare artistic presentations for your presentations in seminars and meetings

Professional Exhibits

We designed and built exhibits for CARSA Leathers Expo and the Nissan Auto Expo.

We Developed the Construction Drawings for several exhibits for the  Aquatarium at Tall Ships Landing. We Developed the Construction Drawings for the Interior Amenities of Tall Ships Landing.

Contact Us
767 Colonel Curry Dr.,
Brockville, Ontario, CA
P: (613) 803-2059 (Also Available Via Text)
F: (613) 865-8337
General Email
info@vmdrafting.com

Copyright 2016 © VM-Drafting. All rights reserved.